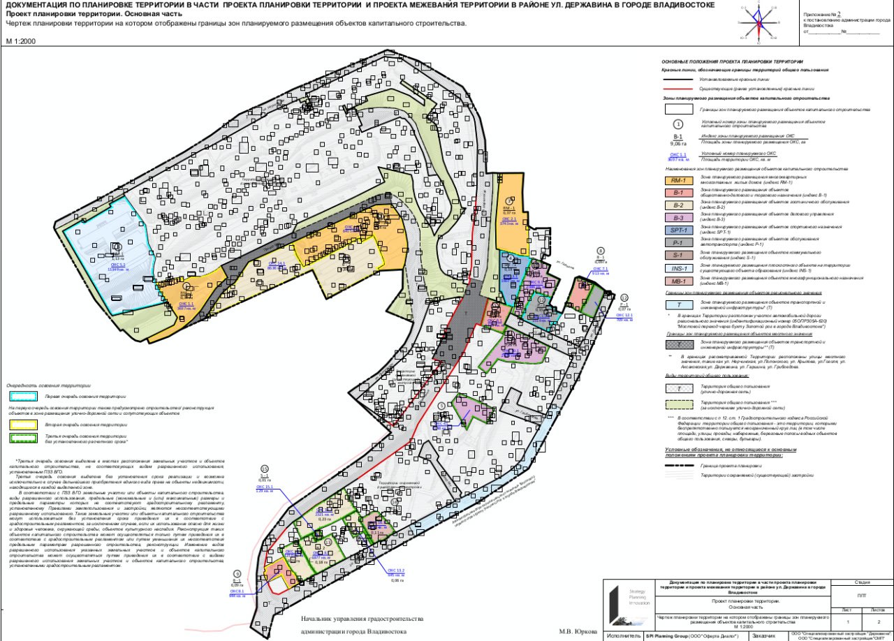
Вокруг вершины Орлиной сопки хотят построить ещё несколько жилых и гостиничный комплексов
Администрация Владивостока объявила обсуждения проекта планировки и межевания территории на вершине улицы Нерчинской и частично в распадке между ВВГУ и Голубиной Падью. Здесь хотят построить ещё несколько жилых домов до 30 этажей. В районе тоннеля Золотого моста добавят гостиниц, офисных зданий и ресторан. Ради этого хотят снести частный сектор и два ГСК. Правда, не в ближайшее время – до 2040 года.












































