Администрация Владивостока перестала учитывать голоса «за» и «против» в общественных обсуждениях
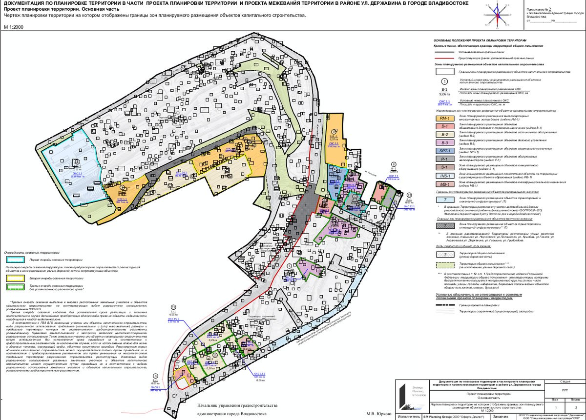
Количество голосов за и против проектов планировки территории теперь не включают в итоговые протоколы общественных обсуждений, учитывается только общее число участников. В качестве выводов предлагаются обтекаемые формулировки, вроде «выявлено общественное мнение». Примечательно, что как раз такой протокол сформирован по итогу обсуждений проекта на Нерчинской и Державина, по которому хотят построить несколько высотных домов и гостиниц на Орлиной сопке и против которого проголосовали больше 200 человек.









































