Мероприятие прошло в Центре содействия развитию молодёжи, где участники познакомились с современными методами использования ИИ.Подробнее о событии и впечатлениях участников — в новом выпуске программы «Мегаполис» на...
Разное
Первый заместитель Дальневосточного транспортного прокурора утвердил обвинительное заключение по уголовному делу в отношении 58-летнего жителя Москвы. Он обвиняется по части 4 статьи 159 УК РФ (мошенничество группой лиц по предварительному сговору в...
На пленарном заседании Комиссии Государственного Совета России по туризму её руководитель и, по совместительству, губернатор Приморского края Олег Кожемяко рассказал об основных направлениях развития туристического потенциала...
Город Находка стал участником всероссийского проекта «Страна трудовой доблести: новые горизонты». Этот проект, проводимый Национальной родительской ассоциацией при поддержке Фонда президентских грантов, — дань уважения и сохранение памяти о вашем, о...
Программа праздника будет насыщенной. Детей ждет аниматор с викториной, мастер-класс по росписи пряников для детей 3–8 лет. Мероприятие пройдет в кафе «Омлет станция» (ул. Ульяновская, 7). Начало в 11:00.Без внимания не оставят и...
Соблюдайте правила противопожарной безопасности, это важнейшие условия сохранения приморских лесов от пожаров!Помните, что виновникам лесных и ландшафтных пожаров грозит штраф до 2 млн рублей. Будьте бдительны, берегите леса!Читайте новости первыми в...
Госдума приняла закон о введении с 1 сентября 2026 года технологического сбора за импорт и производство продукции с электронной компонентной базой. На первом этапе...
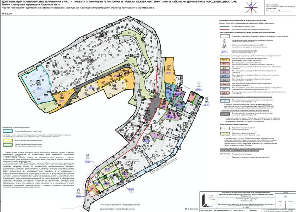
Администрация Владивостока объявила обсуждения проекта планировки и межевания территории на вершине улицы Нерчинской и частично в распадке между ВВГУ и Голубиной Падью. Здесь хотят построить ещё несколько жилых домов до 30 этажей. В районе тоннеля...
Полуторагодовалая гималайская медведица находится в центре реабилитации «Тигр»Косолапая с удовольствием пьет молоко и принимает заботу специалистов.Хищница прославилась после попытки зайти в школу в Ханкайском округе. При осмотре выяснилось, что у нее...
В Хасанском округе установилась сухая и ветреная погода, а по Славянке и Краскино прошли палы. Выгорело больше 5 гектаров сухой травы, пострадали два гаража, один автомобиль и веранда дома.ПодробнееПодпишись...
Самая просматриваемая публикация этой недели – Автобус против машины 2.0: как изменилось движение на гостевом маршруте после отмены выделенной полосы. На этой неделе все вспоминали о событии пятилетней давности – ледяном дожде, который превратил...
Архангел Спецназа!Архангел Спецназа в MAX!
На стадионе "Авангард" появится самый большой бесплатный каток города с 250 парами коньков для проката. Также будет подготовлена трасса "Русской лыжни" с бесплатным входом и инвентарём.По информации управления физкультуры и спорта, работы начнутся при...
Специалисты МКУ «Дорожно-эксплуатационный участок» последовательно наводят порядок в разных районах города. Сегодня работы ведутся на центральной улице - Ленинской. Коммунальные службы подметают тротуары, убирают пластиковый мусор и собирают опавшую...
Находку начали украшать к Новому году. Так, у входа на аллею улицы Ленинской монтируют новогоднюю красавицу. В этом году сборка конструкции стартовала раньше обычного.Высота новогодней елки составляет 15 метров, ее планируют собрать в ближайшие дни...
В этом году на территории проложили 8 км новых экологических тропПроведены работы по асфальтированию дорожек и устройству деревянных настилов. На маршрутах появились информационные стенды о растениях.Дальше планируется установить...
Заседание проходило под руководством Заместителя Председателя Правительства Приморского края Владимира Малюшицкого.В ходе мероприятия обсудили результаты работы министерства по всем ключевым направлениям -...
Горожанам предложат овощи, фрукты, мясо, молочную и рыбную продукцию, а также домашние кулинарные изделия и сладости.В субботу, 22 ноября, ярмарки откроются на Жигуре, 2б и Верхнепортовой, 2г, а в воскресенье, 23 ноября —...
По его словам, акцент инициативы смещается с поверхностного туризма на глубокое погружение соотечественников в российскую научную, образовательную и технологическую среду. Русскоязычная молодёжь посещает ведущие вузы, технопарки...
Специалисты анализируют материалы из семи муниципалитетов краяИсследования помогут разработать меры борьбы с клещом варроа, который ослабляет иммунитет пчёл.Пчеловоды уже применяют различные методы, включая термообработку. Это также...
Лента новостей
- Более шести тысяч жителей Надеждинского района в Приморье остались без света из-за аварии. Проводится проверка, сообщили в прокуратуре.// ВЕСТИ







































